A proposta para o Centro Cultural, de Eventos e Exposições de Nova Friburgo se apresenta a partir da singularidade de relacionar a arquitetura com um contexto puramente geográfico. Defini-se como um evento extraordinário na paisagem montanhosa da Serra Verde Imperial e que, distante de um contexto urbano, sua inserção no lugar como espaço público e construção, situam-no com um elemento autorreferente que cria em si e ao redor de si uma nova condição de apropriação ao público que a ele acede. Um novo lugar em meio à condição da rodoviária do 'Circuito Tere-Fri' capaz de acolher os visitantes em grandes ambientes de atividade e convívio, um lugar dinâmico para que os cidadãos possam nele se reconhecer e transformá-lo num grande ponto de encontro turístico condizente com a sua posição entre municípios. A proposta se estabelece primeiramente como um abrigo que acolhe o programa e o usuário das fortes condições climáticas da região e numa variedade de espaços e ocupações que fundam o exterior em paisagem e o interior em arquitetura. Diante disso, o fato de estar à margem da rodovia RJ-130, faz com que se fundamente a partir de uma arquitetura de grande força expressiva, uma volumetria simples e de fácil apreensão para a velocidade dos automóveis que por ele passam, mas também de modo acolhedor para aqueles visitantes que nele se abrigam. Aliada a estas questões as novas tecnologias aparecem como meios indispensáveis para se propor um sistema construtivo funcional, racional, flexível e econômico, trabalhado para atender toda as incontáveis possibilidades que uma instituição como o CCEE deve ser capaz de oferecer a Nova Friburgo e a futuras outras cidades do Estado.
Implantação
A estratégia de implantação busca fortalecer a presença do CCEE na paisagem a qual se soma, estimulando o desenvolvimento ao seu redor. O projeto se insere no terreno através de um volume horizontal que se acomoda na topografia potencializando a apreensão do visual panorâmico montanhoso e verde em toda sua extensão e também sendo visível como marco referencial na rodovia. O CCEE está contido numa única faixa onde o programa se distribui em espaços e condições distintos. A chegada dá-se através de uma praça monumental que leva o público à área coberta de acolhimento capaz de abrigar uma grande quantidade de usuários e distribuir os públicos em dois níveis distintos. O agenciamento dos espaços se faz por acessos e controles que delimitam áreas de atividades que podem ser abertas autonomamente: pelo nível superior se acessam as Salas de Reuniões e pelo inferior Espaço Multiuso e Auditório. Priorizando sempre uma relação contínua e inseparável entre exterior e interior, o edifício se define como um intermediário entre os programas nele abrigados e as áreas externas propostas preparadas para eventos de grande escala, além de vislumbrar a paisagem. As expansões previstas poderão se localizar na porção norte do terreno, não interferindo na volumetria principal e possíveis de serem acessadas separadamente.
Programa
Os espaços para a cultura, eventos e exposições serão dotados de total flexibilidade, adaptabilidade e controle, possibilitando a sua autonomia segundo a demanda de cada tipo de situação abrigada. Através do controle de iluminação, ventilação, ar-condicionado e divisórias móveis, o CCEE poderá fazer com que todos os seus espaços assumam diferentes tamanhos e configurações, separados ou unidos. A ligação com as áreas técnicas, armazenamento e doca se dará diretamente no nível principal. A versatilidade dos espaços também é possível pelo próprio conceito estrutural do edifício que apresenta um vão livre de grandes proporções. Quando necessário, a grelha estrutural poderá servir de ponto de apoio e suporte para peças de pequeno ou grande porte. O circuito de visitação reflete o conceito de flexibilidade adotado definindo uma variedade de fluxos que buscam atender toda a versatilidade do prédio. Operações de entradas e saídas poderão ser feitos por ambos os níveis, sendo trabalhados em função da independência das atividades ou do número de pessoas acolhido. O projeto permite a acessibilidade total com relação ao público especial. A liberdade dos diversos deslocamentos possíveis vislumbra espacialidades e sensações variadas, envolvida pela luminosidade controlada e dinâmica de suas fachadas e cobertura. São propostos espaços que também fisicamente sejam diversificados permitindo os eventos interiores e exteriores de feiras, congressos, exposições, seminários, shows, etc., e inclusive esportivos.
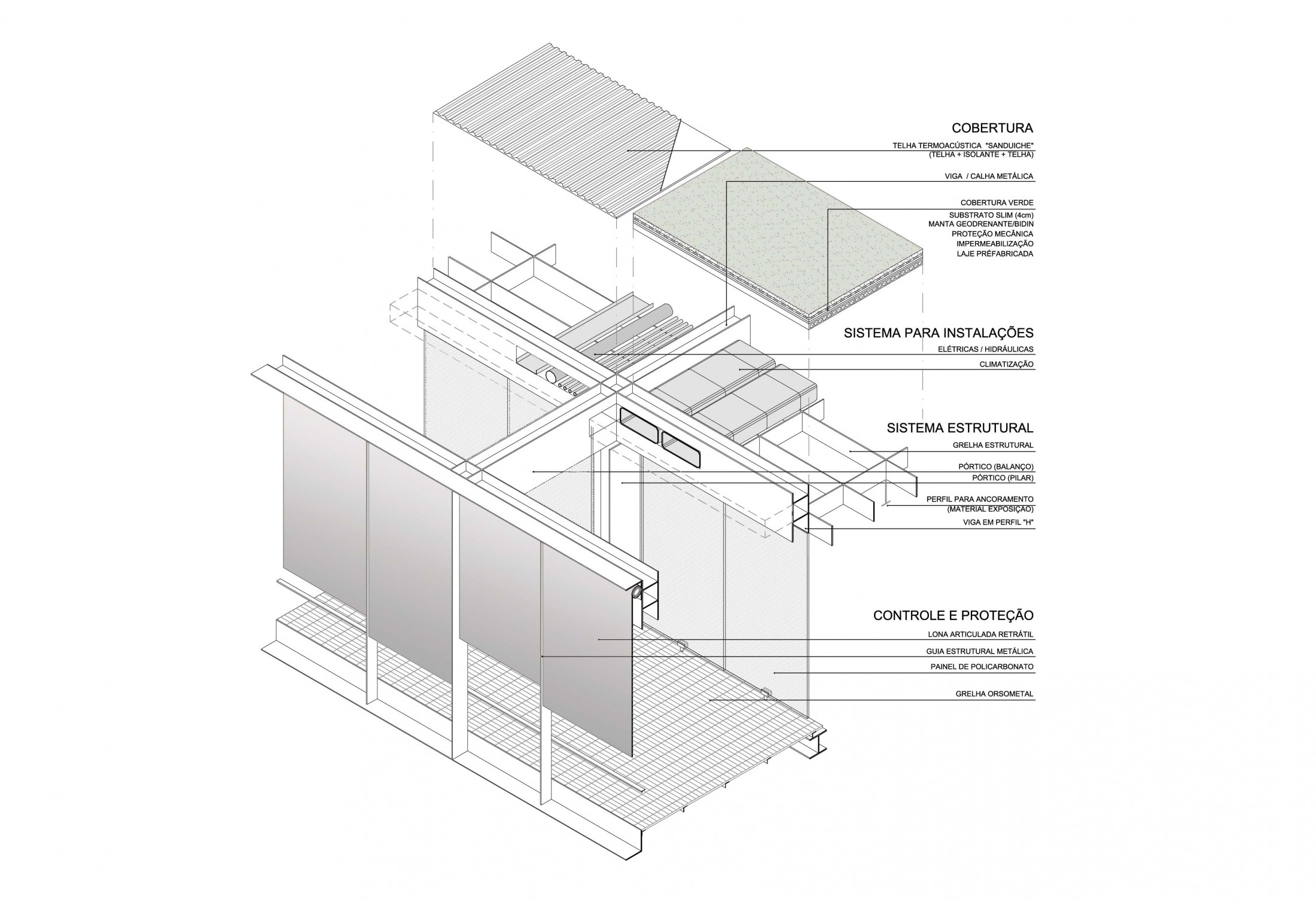
Estrutura
O sistema estrutural proposto contempla, primeiramente, todas as necessidades específicas do funcionamento do CCEE. A estrutura metálica mostra-se ideal ao partir do máximo de industrialização e do mínimo dimensionamento para o ideal uso dos espaços e economia de recursos. Para isso, a estrutura principal se define por duas linhas de apoios que se desenvolvem no sentido longitudinal com um vão livre de 37,5m e balanços laterais de acesso e apoios às fachadas. Sobre estes eixos se apoiam vigas principais transversais e a grelha que desempenha uma diversidade de funções, além da estrutural. Sua configuração permite uma grande flexibilidade para os espaços além de se revelar como infraestrutura, abrigando instalações elétricas, iluminação, hidráulicas e climatização. Suas etapas de execução podem se desenvolver com soluções técnicas rápidas e econômicas significativas frente à escala do projeto. Todos demais elementos construtivos que permitem a redução do impacto ambiental e de desperdícios ou gastos imprevistos com manutenção de longo prazo. O projeto reduz ao máximo o impacto no terreno ao minimizar os ajustes na topografia e apresentar poucos apoios. Elementos pré-fabricados de concreto armado complementam seu embasamento e apoios.
Instalações
As instalações hidráulicas e elétricas estão configuradas para fácil manutenção e acesso, fazendo uso do sistema estrutural proposto. Os reservatórios de água situados próximos e sobre o volume principal atenderão a demanda do edifício tanto para água servida como para sistemas de incêndio. As instalações elétricas visam reduzir ao máximo o consumo de energia considerando a possibilidade de uso de luz natural. Ambas estão previstas para serem implantadas nas áreas de forro e piso atendendo com liberdade total de modulação e adaptação, seja para iluminação, pontos de energias ou água solicitados para os espaços de exposição e eventos. O uso de climatização no edifício torna-se complementar considerando que a proposta arquitetônica é capaz de manter os interiores em condições adequadas de conforto térmico por boa parte do ano. No entanto, para atender às condições climáticas extremas e à especificidade dos espaços o edifício prevê instalações de ar-condicionado, baseado na economia, controle e flexibilidade. Através das grandes vigas longitudinais o sistema funciona como ramificação atendendo a cada espaço independentemente.
Sustentabilidade
Segundo o Diagnóstico Climático da cidade de Nova Friburgo, mostra-se possível que um edifício bem planejado em aspectos de conforto ambiental funcione a partir da mínima utilização de ar-condicionado pela maior parte do ano, um dado muito significativo e que se torna diretriz determinante, no intento de realizar um projeto condizente com o clima local. Todos os espaços possuem total controle de iluminação natural adaptável conforme a variação da incidência de luz e segundo o evento programado. A iluminação será dotada de controle por meio de aberturas zenitais e fachadas têxteis reguláveis. Estas superfícies que protegem o edifício desempenham uma proteção térmica indispensável nas condições climáticas às quais está exposto o CCEE. Junto com a cobertura composta de telhas termoacústicas de alto desempenho e tetos verdes, suas superfícies são os principais elementos que garantem as condições adequadas de conforto em seu interior. A predominância de cores claras em quase todos os elementos busca refletir o máximo de incidência de radiação e transmissão de calor. Tirando partido do sistema estrutural e dos fechamentos, os espaços entre as estruturas como vazios de circulação de ar entre o fechamento interno de fórmica, policarbonato ou vidro e a proteção externa de tecido que protege o volume. Essa camada de ar cria uma zona de transição, tanto espacial (galerias exteriores) como das condições térmicas, amenizando os contrastes entre interior e exterior, e auxiliando no equilíbrio térmico interno. Os fechamentos preveem uma diversidade de aberturas com painéis que se alternam entre fixos e móveis que garantem a ventilação cruzada para a retirada do excesso de ar quente. Quando necessário as aberturas podem ser fechadas mantendo o edifício totalmente vedado.
Paisagismo
A implantação reduz interferências no terreno e possibilita a ocupação de todo o resto da área com vegetação de pequeno ou grande porte. O projeto preconiza a fluidez do espaço com a variação das densidades da vegetação, por meio do uso de espécies nativas e de grandes planos horizontais que determinam a composição do espaço. Foram priorizadas a continuidade espacial e a valorização do meio natural circundante. Assim, alguns dos limites foram definidos por linhas d’água, acompanhados por uma massa arbustiva densa que, além de criarem um controle, poderão dar continuidade a um circuito de coleta de águas pluviais que servirá para a manutenção de uma cisterna subterrânea, cujas águas serão utilizadas na manutenção das áreas externas e águas servidas. Para facilitar a penetração da água no solo foi adotado o uso de pisos semipermeáveis: cerâmica auto drenante (principais circulações), concregrama (estacionamentos) e pedrisco (caminhos periféricos). O espaço destinado a eventos externos contará com a infraestrutura necessária de sanitários, apoio, áreas de sombra e alimentação, originando uma variedade de percursos e espaços externos.
Identidade
Através de sua implantação e forma o CCEE possibilita uma expressividade espacial e sensitiva da ideia de evento. O edifício se torna primeiramente, uma referencia àquilo que o envolve, seja pela sua composição física ou pelo que nele ocorre. Um evento em constante movimento conforme a luz do dia e a força dos ventos, bem como as mudanças em seus espaços. Um estímulo para que qualquer cidadão se sinta convidado a participar. A superfície da fachada é criada a partir de uma modulação de 2,5m cuja padronização de dimensões industrializadas variam seu desenho de abertura/transparência de acordo com o lugar e os usos internos do CCEE. Os planos de tecido retrátil refletem a diversidade de efeitos que conforme suas posições fazem com que o edifício tenha total nível de transparência e permeabilidade visual ou não, conforme desejado.
3rd Prize
Cultural, Events and Exhibition Center of Nova Friburgo - Rio de Janeiro National Architecture Public Competition
Location: Nova Friburgo, RJ
Year: 2014
Site Area: 20.000m²
Built Area: 3.955m²
Authors:
Daniel Corsi
Dani Hirano
André Sauaia
Collaborators:
Fábio Carneiro, Laís Labate D’Almeida e Silva, Adriana Godoy, Felipe Fuchs







